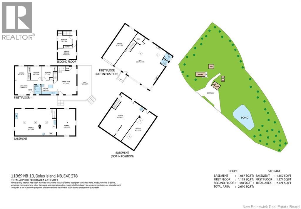
11369 Route 10 Coles Island, New Brunswick E4C 2T8
$500,000
Incredible Waterfront Opportunity with Home, Acreage & Iconic Storefront! What an opportunity! This rare offering includes 2 parcels of land totaling 5.90 acres along the beautiful Canaan River, right at the head of the popular Washademoak Lakea dream location for nature lovers, outdoor enthusiasts, or anyone seeking privacy with endless possibilities. The well-maintained home sits on a stunning lot complete with its own private pond, boat launch, & serene backyardperfect for relaxation, recreation, or entertaining. Inside, the home features newly installed laminate flooring, 4/5 spacious bedrooms & a full basement with walkout & access to the backyard. A large storage area in the basement is ideal for keeping wood dry for the cozy woodstove, adding both charm and functionality. But thats not allthis package also includes the historic Vails General Store, offering tremendous income potential. Whether you envision a storage facility, boat repair shop, mechanics garage, or your own creative venture, the commercial space provides incredible flexibility to turn your vision into reality. Don't miss this unique combination of residential comfort, commercial opportunity, +waterfront lifestyleall in one exceptional property. A true gem with room enjoy! PLEASE NOTE THE FOLLOWING: 1.Oil tanks have been removed and GNB has issued a clean environmental assessment. 2.Tax amount is combination of 2 PID numbers added together. 3. Floor plans include measurements of the home & store. (id:61088)
Property Details
| MLS® Number | NB133820 |
| Property Type | Single Family |
| Amenities Near By | Marina, Ski Hill |
| Features | Treed, Beach, Balcony/deck/patio |
| Structure | Workshop, Shed |
| View Type | River View |
| Water Front Type | Waterfront On River |
Building
| Bathroom Total | 3 |
| Bedrooms Above Ground | 4 |
| Bedrooms Total | 4 |
| Architectural Style | Contemporary, 2 Level |
| Basement Type | Full |
| Constructed Date | 1968 |
| Exterior Finish | Vinyl |
| Flooring Type | Carpeted, Laminate |
| Foundation Type | Concrete |
| Half Bath Total | 2 |
| Heating Fuel | Electric, Wood |
| Heating Type | Baseboard Heaters, Stove |
| Size Interior | 1,523 Ft2 |
| Total Finished Area | 1523 Sqft |
| Type | House |
| Utility Water | Well |
Parking
| Detached Garage | |
| Garage |
Land
| Access Type | Year-round Access, Water Access, Public Road |
| Acreage | Yes |
| Land Amenities | Marina, Ski Hill |
| Landscape Features | Landscaped |
| Sewer | Septic System |
| Size Irregular | 5.9 |
| Size Total | 5.9 Ac |
| Size Total Text | 5.9 Ac |
Rooms
| Level | Type | Length | Width | Dimensions |
|---|---|---|---|---|
| Second Level | Bedroom | 11'6'' x 10'5'' | ||
| Second Level | Bedroom | 15'0'' x 12'0'' | ||
| Basement | Laundry Room | X | ||
| Basement | Storage | 34'4'' x 22'6'' | ||
| Main Level | Living Room | 15'8'' x 11'7'' | ||
| Main Level | Family Room | 11'4'' x 10'5'' | ||
| Main Level | Bedroom | 11'4'' x 9'1'' | ||
| Main Level | Bedroom | 11'4'' x 9'1'' | ||
| Main Level | 4pc Bathroom | X | ||
| Main Level | Dining Room | 23'4'' x 15'5'' | ||
| Main Level | Kitchen | 13'9'' x 11'7'' | ||
| Unknown | Storage | 33'4'' x 22'2'' | ||
| Unknown | Workshop | 34'10'' x 33'10'' |
https://www.realtor.ca/real-estate/29387738/11369-route-10-coles-island
Contact Us
Contact us for more information
Jason Stephen
Salesperson
(506) 657-9889
www.youtube.com/embed/nmdRLd8jR60
www.jasonstephen.ca/
facebook.com/jstephen2
ca.linkedin.com/pub/jason-stephen/11/4a1/439
www.twitter.com/jasonstephensj
www.instagram.com/jasonstephenteam/?next=%2F
71 Paradise Row
Saint John, New Brunswick E2K 3H6
(506) 658-6440
(506) 658-1149
royallepageatlantic.com/
Chezley Ivy Santos
Salesperson
71 Paradise Row
Saint John, New Brunswick E2K 3H6
(506) 658-6440
(506) 658-1149
royallepageatlantic.com/
Chris Oliver
Salesperson
71 Paradise Row
Saint John, New Brunswick E2K 3H6
(506) 658-6440
(506) 658-1149
royallepageatlantic.com/

















































