187 Main Street Chipman, New Brunswick E4A 1X7
$199,900
Step back in time by walking in the doors of this beautiful four square in the heart of Chipman. There's character and charm at every turn and in every nook and cranny of this home. Hardwood floors, antique fixtures, crown moulding, craftsman woodwork, original stair case, stained glass, and so much more! The main floor offers large living room with heat pump, spacious dining room , hardwood floors, kitchen, and half bath in the mudroom. Up the gorgeous wooden stairs are 4 good sized bedrooms, 4 piece bath, and stairway access to storage room in the attic. On the front of the home is a cute sunroom to enjoy your morning coffee, or watch the sun set over Salmon River. At the rear of the home is a covered porch, storage shed and fenced in back yard. The property also offers stunning mature trees, circular driveway with secondary entrance off of Hillcrest Avenue, and single detached garage. There's an added bonus of a second century home included with the sale, which still has great bones but needs extensive work done, could be a perfect restoration project or a tear down. This is a unique property in Chipman that you'll admire forever, so come have a look! Walking distance to grocery store, schools, drug store, post office, rink, gas/convenience store, restaurants, boat launch and much more amenities in the Village Of Chipman. Quick drive to access Salmon River and Grand Lake, as well as under an hour to Fredericton or Oromocto. Check out the virtual tour and video walkthrough. (id:61088)
Property Details
| MLS® Number | NB127448 |
| Property Type | Single Family |
| Features | Balcony/deck/patio |
Building
| Bathroom Total | 2 |
| Bedrooms Above Ground | 4 |
| Bedrooms Total | 4 |
| Basement Type | Full |
| Cooling Type | Heat Pump |
| Exterior Finish | Vinyl |
| Flooring Type | Carpeted, Hardwood |
| Foundation Type | Block, Concrete |
| Half Bath Total | 1 |
| Heating Fuel | Electric |
| Heating Type | Baseboard Heaters, Heat Pump |
| Stories Total | 2 |
| Size Interior | 1,570 Ft2 |
| Total Finished Area | 1570 Sqft |
| Type | House |
| Utility Water | Well |
Parking
| Detached Garage | |
| Garage |
Land
| Access Type | Year-round Access, Public Road |
| Acreage | No |
| Sewer | Municipal Sewage System |
| Size Irregular | 0.73 |
| Size Total | 0.73 Ac |
| Size Total Text | 0.73 Ac |
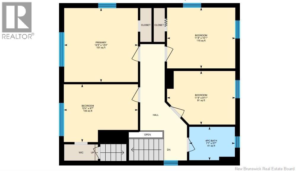
Rooms
| Level | Type | Length | Width | Dimensions |
|---|---|---|---|---|
| Second Level | Primary Bedroom | 12'4'' x 12'3'' | ||
| Second Level | Bedroom | 10'1'' x 11'4'' | ||
| Second Level | Bedroom | 8'11'' x 11'4'' | ||
| Second Level | Bedroom | 9'7'' x 12'4'' | ||
| Second Level | 4pc Bathroom | 5'7'' x 7'7'' | ||
| Main Level | Sunroom | 10'9'' x 8'8'' | ||
| Main Level | Storage | 9'11'' x 8'7'' | ||
| Main Level | Other | 12' x 13' | ||
| Main Level | Mud Room | 8'1'' x 7'6'' | ||
| Main Level | Living Room | 14'3'' x 14'11'' | ||
| Main Level | Kitchen | 8'3'' x 7'7'' | ||
| Main Level | Foyer | 11'1'' x 3'7'' | ||
| Main Level | Dining Room | 12'10'' x 13'10'' | ||
| Main Level | Bath (# Pieces 1-6) | 2'7'' x 4'6'' |
https://www.realtor.ca/real-estate/28916332/187-main-street-chipman
Contact Us
Contact us for more information
Waylon Egers
Salesperson
457 Bishop Drive P.o. Box 1180
Fredericton, New Brunswick E3C 2M6
(506) 458-9999
(506) 452-8953
royallepageatlantic.com/
Ben Schmidt
Salesperson
readyrealty.ca/
457 Bishop Drive P.o. Box 1180
Fredericton, New Brunswick E3C 2M6
(506) 458-9999
(506) 452-8953
royallepageatlantic.com/


















































