345 Front Street Grand-Sault/grand Falls, New Brunswick E3Z 2S8
$339,000
Located in the heart of Grand Falls and within walking distance to schools, shopping, restaurants, and downtown, this beautifully updated home sits on a good-sized lot with mature trees and attractive landscaping. Upon entering, your attention is immediately drawn to the stunning exposed beams and the bright open-concept design. The kitchen features newly refreshed painted cabinets (2023), updated countertops, and a stylish new backsplash. The dining area is perfectly positioned and includes convenient built-in shelving, while the spacious living room is highlighted by a beautiful stone fireplace and warm laminate flooring. From the kitchen area, youll find access to the breezeway and patio doors leading to a large covered patioperfect for enjoying your morning coffee while overlooking the private backyard, complete with mature gardens and stonework hedging. The backyard also provides direct access to the single detached garage, includes additional storage and a loft area for extra storage. Three steps up from the living and dining area leads to the primary bedroom, which features a custom built walk-in closet. The upper level also includes a separate laundry room and a full bathroom with a double sink vanity. The lower level offers a fully finished space with a 3-piece bathroom, workshop area, storage, and one additional non-conforming bedroom (egress window does not meet current code requirements). Countless Renovations done in 2023. Taxes reflects non owner occupied. (id:61088)
Property Details
| MLS® Number | NB134519 |
| Property Type | Single Family |
| Amenities Near By | Shopping |
Building
| Bathroom Total | 2 |
| Bedrooms Above Ground | 1 |
| Bedrooms Below Ground | 1 |
| Bedrooms Total | 2 |
| Architectural Style | Bungalow |
| Basement Development | Partially Finished |
| Basement Type | Full (partially Finished) |
| Exterior Finish | Wood Shingles |
| Flooring Type | Ceramic, Laminate |
| Foundation Type | Concrete |
| Heating Fuel | Electric |
| Stories Total | 1 |
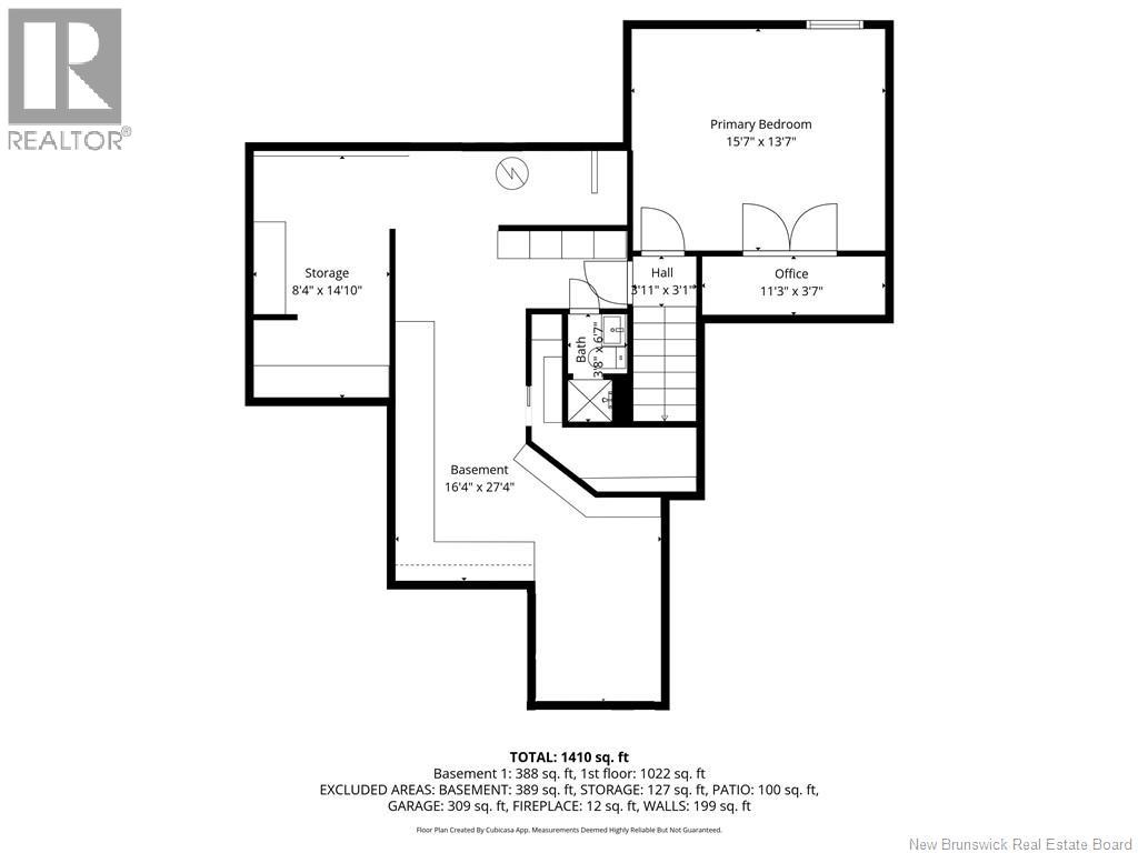
| Size Interior | 1,410 Ft2 |
| Total Finished Area | 1410 Sqft |
| Type | House |
| Utility Water | Municipal Water |
Parking
| Detached Garage | |
| Garage |
Land
| Access Type | Year-round Access, Public Road |
| Acreage | No |
| Land Amenities | Shopping |
| Landscape Features | Landscaped |
| Sewer | Municipal Sewage System |
| Size Irregular | 692 |
| Size Total | 692 M2 |
| Size Total Text | 692 M2 |
Rooms
| Level | Type | Length | Width | Dimensions |
|---|---|---|---|---|
| Basement | 3pc Bathroom | 6'7'' x 3'8'' | ||
| Basement | Bedroom | 15'7'' x 13'7'' | ||
| Main Level | 4pc Bathroom | 10'8'' x 6'4'' | ||
| Main Level | Laundry Room | 7'4'' x 4'1'' | ||
| Main Level | Primary Bedroom | 13'8'' x 12'3'' | ||
| Main Level | Living Room | 13'4'' x 13'5'' | ||
| Main Level | Kitchen | 10'8'' x 8'11'' | ||
| Main Level | Dining Room | 18'6'' x 15'9'' | ||
| Main Level | Foyer | 8'2'' x 15'2'' |
https://www.realtor.ca/real-estate/29430911/345-front-street-grand-saultgrand-falls
Contact Us
Contact us for more information
Marcella Poitras
Salesperson
(506) 473-1004
www.exitrealtyelite.ca/
240 Broadway Blvd
Grand Falls, New Brunswick E3Z 2K2
(506) 473-7004
(506) 473-1004
Lisa Theriault
Salesperson
www.exitrealtyelite.ca/
240 Broadway Blvd
Grand Falls, New Brunswick E3Z 2K2
(506) 473-7004
(506) 473-1004





































