3711 Main Street Belledune, New Brunswick E8G 1Z7
$299,900
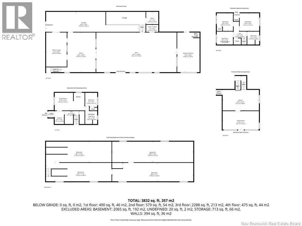
Residential & Commercial Investment Opportunity! This versatile mixed-use property sits on an approx. 1.26-acre high-visibility corner lot, offering great potential for investors and entrepreneurs. The residential section features a 2-bedroom apartment, plus a partially finished basement with its own entrance ideal for creating a future 1-bedroom unit with some finishing work and plumbing to septic. The commercial side includes a commercial kitchen, open area, large walk-in cooler, office, 1/2 bathroom, side loading dock, and plenty of storage, perfect for food service, retail, or a wide range of business uses. With high exposure, ample parking, and flexible space, this residential and commercial property offers endless possibilities. HST is Not included in the purchase price. With your personal touch this property has the potential to bring your investment vision to life. (id:61088)
Business
| Business Type | Restaurant, Retail and Wholesale |
| Business Sub Type | Restaurant, General retail |
Property Details
| MLS® Number | NB131009 |
| Property Type | Other |
| Features | Corner Site, Visual Exposure |
| Structure | Shed |
Building
| Constructed Date | 1975 |
| Cooling Type | Heat Pump |
| Exterior Finish | Hardboard, Other, Vinyl |
| Fire Protection | Monitored Alarm, Security System |
| Heating Fuel | Electric, Oil |
| Heating Type | Forced Air, Heat Pump |
| Size Interior | 2,832 Ft2 |
| Total Finished Area | 2832 Sqft |
Land
| Acreage | Yes |
| Size Irregular | 5105 |
| Size Total | 5105 M2 |
| Size Total Text | 5105 M2 |
https://www.realtor.ca/real-estate/29161596/3711-main-street-belledune
Contact Us
Contact us for more information
Eileen Fairbairn
Salesperson
205 Roseberry Street
Campbellton, New Brunswick E3N 2H4
(506) 759-9080
(506) 759-9094
www.remax-prestigerealty.com/


































